

グラシアタカハタフドウ
グラシア高幡不動


UniLifeコード:636
情報更新日:2025年11月29日 /次回更新予定日:2025年12月13日
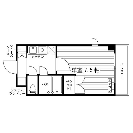
間取り図

| 賃料 | 6.2万円 |
|---|---|
| 管理費 | 9千円/月 |
| 敷金 | 1ヶ月分 |
| 礼金 | 2ヶ月分 |
建物情報
| 所在地 |
〒191-0031 東京都日野市高幡1008-9 |
||
|---|---|---|---|
| 間取り/ 面積 |
1K/15.4m²~23.2m²/5.5帖~7.5帖 |
||
| 階数・ 全部屋数 |
地上10階建て |
構造 |
鉄骨鉄筋コンクリート造 |
| 完成年月 |
1998年03月 |
向き |
西、東、南 |
| 各室専用 設備 |
セパレート(バス・トイレ)/セパレート(一部ユニットバス)/システムランドリー/温水洗浄便座/IHコンロ(1口)/IHコンロ/家具家電付(一部)/玄関センサー感知ライト/居室照明器具/バルコニー/フローリング/シューズケース/収納/インターフォン(TVモニター付)/防犯ディンプルキー/エアコン/個別給湯(ガス) |
||
| 共同設備 |
BSアンテナ/CATV/インターネット対応/オートロック/エントランス防犯モニター/防犯カメラ/防犯カメラシステム/エレベーター/花粉除去エアシャワー/宅配BOX |
||
| 家賃保証 |
契約には貸主の指定する家賃保証会社利用が必須となり、別途保証委託料が必要です。 |
||
| 契約年数 |
1年 |
更新料 |
0.5ヶ月分 |
| その他 費用 |
電気:個人契約 |
||
| 取引態様 |
媒介 |
||
| 保険 |
総合補償要 |
||
入居募集中の部屋情報
| 0606号室 6階 |
62,000円 | 2026年2月中旬 | 1K (21.28m²) |
西 |
0606号室6階
- 賃料
- 62,000円
- 入居可能時期
- 2026年2月中旬
- 間取/面積
- 1K(21.28m²)
- 向き
- 西
- 備考・条件
お問い合わせはこちらの店舗へ
株式会社ジェイ・エス・ビー・ネットワーク
京王本線「高幡不動」駅南口より徒歩3分
多摩都市モノレール線「高幡不動」駅より徒歩1分
東京都日野市高幡1009-3エンフォート高幡1F
免許番号:国土交通大臣(6)第5716号
加盟団体:(公社)全日本不動産協会(公社)不動産保証協会(公社)首都圏不動産公正取引協議会
営業時間:
平日:10:00~17:00
土日祝:10:00~17:00
休業日はこちらでご確認いただけます
お問合せ先店舗
















































































