

ガクセイカイカンクラッシィベースキョウドウ
学生会館 classy BASE 経堂【食事付き】


UniLifeコード:11849
情報更新日:2025年11月09日 /次回更新予定日:2025年11月23日
お問合せ先店舗
賃料情報・代表間取り図
| 賃料 | 8.5万円~8.55万円 (1R24.0㎡タイプ:9.1万円) |
|---|---|
| 食費 | 29,700円/月(税込)※欠食返金あり |
| 管理費 | 22.2万円/年(月払可:1.9万円/月)※共用部水道光熱費含む |
| 敷金 | 5万円※禁煙特約あり |
| 入館金 | 1年:10万円 2年:18万円 |
急行停車駅「経堂」徒歩6分!朝夕2食付き学生会館で食生活をサポート♪全室家具家電付き!多数の大学に通学便利!
全室家具家電付き/有人管理(日勤)/フリーシンク(洗面)
360°パノラマとじるひらく
動画案内を見るとじるひらく
建物情報
| 所在地 |
〒156-0051 東京都世田谷区宮坂3丁目35-2 |
||
|---|---|---|---|
| 最寄り駅 |
小田急小田原線「経堂」駅徒歩6分 東急世田谷線「松原」駅徒歩12分 京王線「下高井戸」駅徒歩19分 |
||
| 間取り/ 面積 |
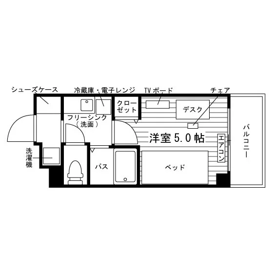
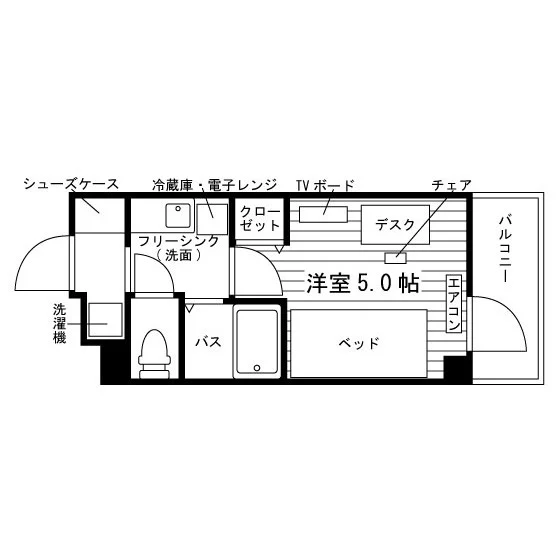
1R/15.9m²~24m²/5帖~8帖 |
||
| 階数・ 全部屋数 |
地上4階建て |
構造 |
鉄筋コンクリート造 |
| 完成年月 |
2020年01月 |
向き |
南西、北東 |
| 各室専用 設備 |
セパレート(バス・トイレ)/室内物干/温水洗浄便座/浴室乾燥機/フリーシンク(洗面)/家具家電付/玄関センサー感知ライト/バルコニー/収納/シューズケース/吊棚/インターフォン(TVモニター付)/暗証番号式キー/エアコン |
||
| 共同設備 |
BS・CSアンテナ/UniLife-net光(UCOM光) Wi-Fi対応/インターネット対応/オートロック/防犯カメラ(ユニセーフ24仕様)/エレベーター/宅配BOX/駐輪場(自転車のみ) |
||
| 家賃保証 |
契約には貸主の指定する家賃保証会社利用が必須となり、別途保証委託料が必要です。 |
||
| 契約年数 |
1~2年※定期建物賃貸借契約(再契約可) |
更新料 |
なし |
| その他 費用 |
電気・ガス(都市):個人契約 |
||
| 取引態様 |
媒介 |
||
| 保険 |
総合補償要 |
||
入居募集中の部屋情報
0301号室3階
- 賃料費
- 85,500円
家具家電付き
- 入居可能時期
- 2026年4月1日
- 間取/面積
- 1R(16.2m²)
- 向き
- 南西
- 備考・条件
0310号室3階
- 賃料費
- 85,000円
家具家電付き
- 入居可能時期
- 2026年4月1日
- 間取/面積
- 1R(15.9m²)
- 向き
- 南西
- 備考・条件
0406号室4階
- 賃料費
- 85,500円
家具家電付き
- 入居可能時期
- 2026年4月1日
- 間取/面積
- 1R(15.9m²)
- 向き
- 南西
- 備考・条件
0411号室4階
- 賃料費
- 85,500円
家具家電付き
- 入居可能時期
- 2025年12月中旬
- 間取/面積
- 1R(15.9m²)
- 向き
- 南西
- 備考・条件
周辺施設情報
通学に便利な学校と所要時間
| 東京農業大学(世田谷キャンパス) |
|
|---|---|
| 日本大学(文理学部) |
|
| 日本大学(商学部) |
|
| 国士舘大学(世田谷キャンパス) |
|
| 成城大学 |
|
| 駒澤大学(駒沢キャンパス) |
|
| 東京大学(駒場キャンパス) |
自転車18分 |
| 明治大学(和泉キャンパス) |
|
| 明治大学(駿河台キャンパス) |
経堂→(小田急線7分)→代々木上原→(小田急線7分)新宿→(JR中央線快速9分)→御茶ノ水 |
| 専修大学(生田キャンパス) |
経堂→(小田急線急行10分)→向ヶ丘遊園 |
| 明治大学(生田キャンパス) |
経堂→(小田急線急行9分)→向ヶ丘遊園(6分)→(小田急線2分)→生田 |
| 上智大学(四谷キャンパス) |
経堂→(小田急線19分)→新宿(4分)→(JR中央線快速4分)→四ツ谷 |
| 工学院大学(新宿キャンパス) |
経堂→(小田急線6分)→代々木上原(1分)→(小田急線急行7分)→新宿 |
| 文化学園大学 |
経堂→(小田急線6分)→代々木上原(1分)→(小田急線急行7分)→新宿 |
| 国際ファッション専門職大学(東京キャンパス) |
経堂→(小田急線19分)→新宿 |
| 桜美林大学(新宿キャンパス) |
経堂→(小田急線7分)→代々木上原→(小田急線7分)→新宿→(JR山手線2分)→新大久保 |
| 青山学院大学(青山キャンパス) |
経堂→(小田急線~東京メトロ千代田線(直通)17分)→表参道 |
| 明治大学(中野キャンパス) |
経堂→(小田急線7分)→代々木上原→(小田急線7分)→新宿(4分)→(JR中央線快速4分)→中野 |
| 早稲田大学(早稲田キャンパス) |
経堂→(小田急線7分)→代々木上原→(小田急線7分)→新宿(4分)→(JR山手線5分)→高田馬場 |
| 立教大学(池袋キャンパス) |
経堂→(小田急線7分)→代々木上原→(小田急線7分)→新宿→(JR埼京線6分)→池袋 |
| 服部栄養専門学校 |
経堂→(小田急線6分)→代々木上原(1分)→(小田急線急行7分)→新宿 |
|---|---|
| 専門学校東京ビジネス・アカデミー |
経堂→(小田急線6分)→代々木上原(1分)→(小田急線急行7分)→新宿 |
| 東京モード学園 |
経堂→(小田急線19分)→新宿 |
| 専門学校首都医校 |
経堂→(小田急線19分)→新宿 |
| 東京ロシア語学院 |
|
| 世田谷中央看護高等専修学校 |
|
| 世田谷区医師会立看護高等専修学校 |
|
| 東放学園専門学校 |
|
| 国際動物専門学校 |
|
| レコールバンタン高等部(東京校) |
|
| バンタンゲームアカデミー高等部(東京校) |
|
| バンタンクリエイターアカデミー高等部(東京校) |
|
| KADOKAWAドワンゴ情報工科学院(東京校) |
経堂→(小田急小田原線3分)下北沢→(京王井の頭線5分)渋谷→(JR山手線2分)恵比寿 |
| 東京デザインプレックス研究所 |
経堂→(小田急小田原線3分)→下北沢→(京王井の頭線7分)→渋谷 |
| 武田塾医進館(渋谷校) |
経堂→(小田急小田原線準急3分)→下北沢→(京王井の頭線7分)→渋谷 |
| 日本電子専門学校 |
経堂→(小田急小田原線急行11分)→新宿→(JR中央・総務線2分)→大久保 |
| 国際文化理容美容専門学校渋谷校 |
経堂→(小田急小田原線急行3分)→下北沢→(京王井の頭線4分)→神泉 |
| 武田塾医進館(御茶ノ水校) |
板橋区役所前→(都営三田線12分)→春日→(都営大江戸線2分)→本郷三丁目 |
| 原宿ベルエポック美容専門学校 |
経堂→(小田急線10分)→代々木上原→(東京メトロ千代田線4分)→明治神宮前 |
| 山野美容専門学校 |
新宿→(小田急小田原線通勤準急6分)→代々木上原(2分)→(小田急小田原線快速急行7分)→新宿 |
東京農業大(世田谷キャンパス)、日本大(文理学部・商学部)、明治大(和泉キャンパス)と、マンション周辺には通学便利な学校がたくさんあります♪新宿まで電車11分と都心へのアクセス良好☆セキュリティ設備・サービスが充実、全室バス・トイレセパレート♪門限なしでプライベートも確保できます!
間取り図・各室専用設備紹介
間取り図
各室専用設備紹介
フロア平面図・共用部設備紹介
フロア平面図
共用部設備紹介
朝夕2食付き 学生会館
朝夕2食付き 学生会館
食堂 営業時間:平日 朝食6:30~9:30 (LO 9:00)、夕食18:30~22:00(LO 21:30)/土日祝 提供なし
当学生会館は、UniLifeオリジナルサービス『UniTime Kitchen』提供の、朝夕2食の食事付きです。
食事付きだと、日々の面倒な食材の買い出しや調理の手間が省け、勉強やサークル活動に集中できます。学生様にも、初めてのひとり暮らしを心配されている親御様にもご好評いただいている人気のサービスです。
『UniTime Kitchen』では、管理栄養士監修の下、栄養バランスが良く飽きが来ないように工夫された豊富なレシピで、ご家族の愛情たっぷりのご飯にも負けないできたてのお料理をご提供いたします。育ちざかりの皆様の日々の健康管理は『UniTime Kitchen』にお任せください。
- 1.管理栄養士監修メニュー
- 2.しっかり朝夕2食付き
- 3.ごはんはおかわり自由!
- 4.和食も洋食もバランスよく
- 5.館内調理で温かい食事
- 6.友達・仲間が作れる
- 7.イベントメニューが楽しい!
- 8.ウェルカムパーティ開催(一部)
ユニライフ食堂
「UniTime kitchen」のコンセプトは「Unison kitchen = 親しみを生む食堂」
音楽用語で同じ高さの音同士を指す「Unison」という言葉には「和合=親しみあって仲良くすること」という意味があります。「おいしいものを食べる時間」には人と人とのつながりを高める力があると考え、学生生活をより豊かにする食環境をつくることを目指しています。
ウェルカムパーティー開催予定!
食堂でみんなで食べるお食事は、同じ学校・または他校に通うお友達や、同世代の仲間との大切な交流の時間です。
新入生が入館する春には『WELCOME パーティー』を開催予定です。
初めて顔を合わせる者同士、楽しくお話ができるようにさまざまな催しを準備してお待ちしています。友達ができるかな?なんて心配も吹き飛びますよ!
家具家電付きデザインルーム
家具家電付きデザインルーム
当学生会館の居室には、予め全室に家具家電が備え付けられています。
引越し代や家具家電の購入費用・手間・時間、処分代などを大幅に軽減できるため、費用面で大助かり!入居後、素早く生活が開始できます♪
- 1.新生活用品の購入費を抑えられる!
- 2.引越し費用を軽減!
- 3.新生活用品購入の手間・時間を軽減できる!
- 4.退室時の処分の費用を軽減!
入居者の声
「第一志望校の変更で急に進学先が変わった」
「併願受験で最終決定が3月になってしまった」
など、引越しの準備をする時間がない人には、便利なサービスだと思います。
引越し費用の軽減ができるし、処分代もかからないのはとても便利ですね!
家具家電の内容
-
家具5点
ベッド・デスク&ワゴン・チェア・TVボードが付いています。
-
家電4点
洗濯機、冷蔵庫、電子レンジ、照明器具が付いています。
※家具・家電などのデザイン、色、点数、備品は部屋によって異なります。詳しくはお問い合わせください。 ※写真はイメージです。実際のお部屋とは異なります。
ユニセーフ24
ユニセーフ24

館内で異常を発見した際、共用部の非常ボタンを押すことでベルが鳴動し異常を通報。ALSOKまたはSECOM管制センターにてカメラ画像や音声通話で状況を確認、必要時はガードマンが24時間体制で現地に駆け付けます。
24時間サポート体制
24時間サポート体制

24時間365日サポートでひとり暮らしでも安心!
お部屋の鍵を失くしてしまった、隣が騒がしくて眠れない、トイレの水が止まらない…。初めてのひとり暮らしでのトラブルは、不安が大きいですよね。
安心の24時間管理体制で深夜でも繋がる相談窓口がお客様の快適生活をサポートします。
※UniLife学生総合補償24の加入者は、修理対応などに伴う出張料金および作業料金が優遇されます。
※状況により対応は、翌営業日以降になる場合がございます。
高速光インターネットUniLife-net
高速光インターネットUniLife-net

光インターネット専用回線を、マンション1棟全体に配線。入居したその日からすぐ使用できます。回線基本料金・回線使用料・プロバイダ料金込みの月額定額制。Wi-Fi対応でスマホやパソコン、ゲーム等快適にネット生活が楽しめます。
- 1.高速光ファイバーインターネット(最大1Gbps) ※1
- 2.月額料金定額制!
- 3.回線基本料金・回線使用料・プロバイダ料金すべてコミコミ!※2
- 4.接続が簡単!線がお部屋まで来ているので「カチッ!」と差し込むだけ! ※3
- 5.安心・充実のサポート体制 ※4
- 6.室内用Wi-Fi機能付き!
※1 通信速度はベストエフォートのため、一定の通信速度を保証するものではありません。
※2 別途、加入金がかかります。
※3 専用のLANケーブルを各住戸まで直結している「Ethernet方式」、既存の電話線を利用してVDSLモデムで接続するLANシステム規格の「VDSL方式」のいずれかの接続方式になります。詳細は店舗にお問い合わせください。
※4 マンションによってサポートの時間帯が異なります。詳細は店舗にお問い合わせください。
スライドシステム対応
スライドシステム対応

急な進学先の変更でも大丈夫。
進学先変更に伴い、お部屋の変更が必要になった場合でも、ご契約期間開始前であれば、他のお部屋への変更が無料で行えます。ご契約金も移動されるので、費用の面でも安心です。
家具家電付きデザインルーム

引越し代や家具家電の購入費用・手間・時間、処分代などを大幅に軽減できるため、大変人気のサービスです♪
- 1.新生活用品の購入費を抑えられる!
- 2.引越し費用を軽減!
- 3.新生活用品購入の手間・時間を軽減できる!
- 4.退室時の処分の費用を軽減!
入居者の声
「第一志望校の変更で急に進学先が変わった」
「併願受験で最終決定が3月になってしまった」
など、引越しの準備をする時間がない人には、便利なサービスだと思います。
引越し費用の軽減ができるし、処分代もかからないのはとても便利ですね!
家具家電の内容
-
家具5点
ベッド・デスク&ワゴン・チェア・TVボードが付いています。
-

家電4点
洗濯機、冷蔵庫、電子レンジ、照明器具が付いています。
※家具・家電などのデザイン、色、点数、備品は部屋によって異なります。詳しくはお問い合わせください。 ※写真はイメージです。実際のお部屋とは異なります。
朝夕2食付き 学生会館
食堂 営業時間:平日 朝食6:30~9:30 (LO 9:00)、夕食18:30~22:00(LO 21:30)/土日祝 提供なし
当学生会館は、UniLifeオリジナルサービス『UniTime Kitchen』提供の、朝夕2食の食事付きです。
食事付きだと、日々の面倒な食材の買い出しや調理の手間が省け、勉強やサークル活動に集中できます。学生様にも、初めてのひとり暮らしを心配されている親御様にもご好評いただいている人気のサービスです。
『UniTime Kitchen』では、管理栄養士監修の下、栄養バランスが良く飽きが来ないように工夫された豊富なレシピで、ご家族の愛情たっぷりのご飯にも負けないできたてのお料理をご提供いたします。育ちざかりの皆様の日々の健康管理は『UniTime Kitchen』にお任せください。
- 1.管理栄養士監修メニュー
- 2.しっかり朝夕2食付き
- 3.ごはんはおかわり自由!
- 4.和食も洋食もバランスよく
- 5.館内調理で温かい食事
- 6.友達・仲間が作れる
- 7.イベントメニューが楽しい!
- 8.ウェルカムパーティ開催(一部)
ユニライフ食堂
「UniTime kitchen」のコンセプトは「Unison kitchen = 親しみを生む食堂」
音楽用語で同じ高さの音同士を指す「Unison」という言葉には「和合=親しみあって仲良くすること」という意味があります。「おいしいものを食べる時間」には人と人とのつながりを高める力があると考え、学生生活をより豊かにする食環境をつくることを目指しています。
ウェルカムパーティー開催予定!

食堂でみんなで食べるお食事は、同じ学校・または他校に通うお友達や、同世代の仲間との大切な交流の時間です。
新入生が入館する春には『WELCOME パーティー』を開催予定です。
初めて顔を合わせる者同士、楽しくお話ができるようにさまざまな催しを準備してお待ちしています。友達ができるかな?なんて心配も吹き飛びますよ!
ユニセーフ24

共用部の非常ボタンを押すことでベルが鳴動し異常を通報。ALSOKまたは、SECOMの管制センターにてカメラ画像や音声通話で状況を確認、必要時はガードマンが24時間体制で現地に駆け付けます。
24時間サポート体制

お部屋の鍵を失くしてしまった、隣が騒がしくて眠れない、トイレの水が止まらない…。初めてのひとり暮らしでのトラブルは、不安が大きいですよね。
安心の24時間管理体制で深夜でも繋がる相談窓口がお客様の快適生活をサポートします。
※UniLife学生総合補償24の加入者は、修理対応などに伴う出張料金および作業料金が優遇されます。
※状況により対応は、翌営業日以降になる場合がございます。
高速光インターネットUniLife-net

光インターネット専用回線を、マンション1棟全体に配線。入居したその日からすぐ使用できます。回線基本料金・回線使用料・プロバイダ料金込みの月額定額制。Wi-Fi対応でスマホやパソコン、ゲーム等快適にネット生活が楽しめます。
- 1.高速光ファイバーインターネット(最大1Gbps) ※1
- 2.月額料金定額制!
- 3.回線基本料金・回線使用料・プロバイダ料金すべてコミコミ!※2
- 4.接続が簡単!線がお部屋まで来ているので「カチッ!」と差し込むだけ! ※3
- 5.安心・充実のサポート体制 ※4
- 6.室内用Wi-Fi機能付き!
※1 通信速度はベストエフォートのため、一定の通信速度を保証するものではありません。
※2 別途、加入金がかかります。
※3 専用のLANケーブルを各住戸まで直結している「Ethernet方式」、既存の電話線を利用してVDSLモデムで接続するLANシステム規格の「VDSL方式」のいずれかの接続方式になります。詳細は店舗にお問い合わせください。
※4 マンションによってサポートの時間帯が異なります。詳細は店舗にお問い合わせください。
スライドシステム対応

進学先が変更になった場合でも、ご契約期間開始前なら、「スライド対応」マークが付いた他のUniLifeマンションへ無料で変更(スライド)できます。ご契約金も移動(スライド)され、費用面でも安心♪
安心・快適のサービス一覧
お問い合わせはこちらの店舗へ
株式会社ジェイ・エス・ビー・ネットワーク
JR・小田急線・京王線・地下鉄各線「新宿」駅西口より徒歩3分
東京都新宿区西新宿1丁目6-1新宿エルタワー16F
免許番号:国土交通大臣(6)第5716号
加盟団体:(公社)全日本不動産協会(公社)不動産保証協会(公社)首都圏不動産公正取引協議会
営業時間:
平日:10:00~17:00
土日祝:10:00~17:00
休業日はこちらでご確認いただけます
株式会社ジェイ・エス・ビー・ネットワーク
JR各線「渋谷」駅 西口より徒歩2分
京王井の頭線「渋谷」駅 中央口より徒歩1分
東急・東京メトロ各線「渋谷」駅 A5b出口より徒歩2分
東京都渋谷区道玄坂1丁目3-3楠本ビル5F
免許番号:国土交通大臣(6)第5716号
加盟団体:(公社)全日本不動産協会(公社)不動産保証協会(公社)首都圏不動産公正取引協議会
営業時間:
平日:10:00~17:00
土日祝:10:00~17:00
休業日はこちらでご確認いただけます
360度パノラマ








































































































































