• 2026年度春入居申込み・合格発表前予約
  • 秋の住み替え初期割キャンペーン

通話無料

UniLife岡山駅西口店0120-335-422

来春入居予約 受付中 合格発表前予約受付

logo ルラシオンオカヤマホウカンチョウ ルラシオン岡山奉還町

お気に入り お気に入り

UniLifeコード:10141
情報更新日:2025年11月29日 /次回更新予定日:2025年12月13日

棟情報に戻る

部屋番号
0808号室
部屋タイプ
Eタイプ
所在階
8階/地上10階建て
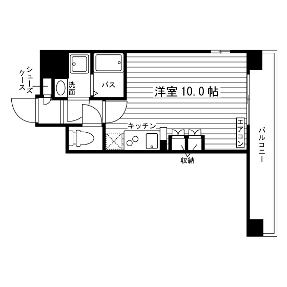
間取り・面積
1K(25.55m²)
部屋向き
西
入居可能時期
2026年4月1日
※実際の入居時期は担当店舗までお問い合わせください。

間取り図

間取り図
賃料 5.45万円
◎早得CP対象(~12/末まで)◎家賃4,500円OFF※表記条件より適用
共益費 7千円/月
敷金 6万円※禁煙特約あり
礼金 15万円

建物外観

1Kタイプ※モデルルーム

1Kタイプ※モデルルーム

1Kタイプ※モデルルーム

1Kタイプ※モデルルーム

1Rタイプ

1Rタイプ

1Rタイプ

1Rタイプ

ロフト(9F・西側)

独立洗面化粧台※モデルルーム

トイレ※モデルルーム

浴室※モデルルーム

給湯器 電源

ラジエントヒーター2口

収納

モニター付きインターフォン

吊り棚

バルコニー

シューズケース

浴室乾燥機

共用廊下

エレベーター

オートロック

エントランス

宅配ボックス

集合ポスト

建物玄関

駐輪場

銀行

郵便局

病院

ショッピングセンター

コンビニ

/

建物情報

所在地

〒700-0026 岡山県岡山市北区奉還町1丁目10-21

間取り/
面積

1R~1K/25.55m²/8帖~10帖

階数・
全部屋数

地上10階建て
111部屋

構造

鉄筋コンクリート造

完成年月

2008年03月

向き

東、西

各室専用
設備

独立洗面化粧台/セパレート(バス・トイレ)/洗濯機置場(室内)/浴室乾燥機/温水洗浄便座/RHコンロ(2口)/家具家電付(一部)/家電付(一部)/玄関センサー感知ライト/居室照明器具/バルコニー/フローリング/シューズケース/吊棚/収納/インターフォン(TVモニター付)/暗証番号式キー/エアコン/オール電化(ガス無し)

共同設備

BSアンテナ/CSアンテナ/UniLife-net光(UCOM光) Wi-Fi対応/インターネット対応/インターネット(Wi-Fi対応)/オートロック/防犯カメラ/エレベーター/自動販売機/宅配BOX/駐車場(任意)/駐輪場(原付50cc可)

家賃保証

契約には貸主の指定する家賃保証会社利用が必須となり、別途保証委託料が必要です。
(契約時:月額賃料等の50% 更新時:1万円/年)
※なお、保証会社およびプランによって金額は変動します。

契約年数

2年※定期建物賃貸借契約(再契約可)

更新料

なし(再契約可)

その他
費用

電気・水道:個人契約
インターネット:3,300円/月(税込) ※加入金13,200円(税込)
町内会費:1,200円/年
除菌施工費:17,600円(税込)※契約時
電子錠初期設定費:18,700円(税込)※契約時
投てき用消火用具:6,600円(税込)※契約時(任意)
駐輪登録料:3,300円(税込)※契約時(任意)
総合補償:42,240円/2年(税込)※契約・再契約時
総合補償OVOプラス:19,800円/2年(税込)※契約・再契約時
仲介手数料:家賃1ヶ月分+税 ※契約時
再契約事務手数料:16,500円(税込)※再契約時
基本清掃料:35,200円~40,700円(税込)※契約時

取引態様

媒介

保険

総合補償要

入居募集中の部屋情報

部屋番号 賃料 入居可能時期 間取/面積 向き 備考・条件
0307号室
3階
52,500円 即入居可 1R
(25.55m²)
※即入居限定※ ☆住替え初期割CP対象(~12/末まで)☆礼金・敷金なし・家賃最大1ヶ月分フリーレント※表記条件より適用
0508号室
5階
54,500円 2026年4月1日 1K
(25.55m²)
西 ◎早得CP対象(~12/末まで)◎家賃4,500円OFF※表記条件より適用
0604号室
6階
55,500円 2026年4月1日 1K
(25.55m²)
◎早得CP対象(~12/末まで)◎家賃4,500円OFF※表記条件より適用
0605号室
6階
56,500円 2026年2月中旬 1K
(25.55m²)
◎早得CP対象(~12/末まで)◎家賃4,500円OFF※表記条件より適用 ※入居時期相談応
0608号室
6階
54,500円 2026年4月1日 1K
(25.55m²)
西 ◎早得CP対象(~12/末まで)◎家賃4,500円OFF※表記条件より適用
0610号室
6階
53,500円 2026年4月1日 1K
(25.55m²)
西 ◎早得CP対象(~12/末まで)◎家賃4,500円OFF※表記条件より適用
0611号室
6階
53,500円 2026年4月1日 1K
(25.55m²)
西 ◎早得CP対象(~12/末まで)◎家賃4,500円OFF※表記条件より適用
0612号室
6階
53,500円 2026年4月1日 1K
(25.55m²)
西 ◎早得CP対象(~12/末まで)◎家賃4,500円OFF※表記条件より適用
0613号室
6階
54,500円 2026年1月中旬 1K
(25.55m²)
西 ◎早得CP対象(~12/末まで)◎家賃4,500円OFF※表記条件より適用 ※入居時期相談応
0808号室
8階
54,500円 2026年4月1日 1K
(25.55m²)
西 ◎早得CP対象(~12/末まで)◎家賃4,500円OFF※表記条件より適用
0809号室
8階
53,500円 2026年4月1日 1K
(25.55m²)
西 ◎早得CP対象(~12/末まで)◎家賃4,500円OFF※表記条件より適用
0901号室
9階
56,500円 2026年3月上旬 1R
(25.55m²)
◎早得CP対象(~12/末まで)◎家賃4,500円OFF※表記条件より適用
0902号室
9階
56,500円 2026年4月1日 1K
(25.55m²)
◎早得CP対象(~12/末まで)◎家賃4,500円OFF※表記条件より適用
0903号室
9階
56,500円 2025年12月中旬 1K
(25.55m²)
◎早得CP対象(~12/末まで)◎家賃4,500円OFF※表記条件より適用 ※入居時期相談応
0908号室
9階
59,000円 2026年4月1日 1K
(25.55m²)
西 ◎早得CP対象(~12/末まで)◎家賃4,500円OFF※表記条件より適用

0307号室3階

賃料
52,500円
入居可能時期
即入居可
間取/面積
1R(25.55m²)
向き
備考・条件
※即入居限定※ ☆住替え初期割CP対象(~12/末まで)☆礼金・敷金なし・家賃最大1ヶ月分フリーレント※表記条件より適用

0508号室5階

賃料
54,500円
入居可能時期
2026年4月1日
間取/面積
1K(25.55m²)
向き
西
備考・条件
◎早得CP対象(~12/末まで)◎家賃4,500円OFF※表記条件より適用

0604号室6階

賃料
55,500円
入居可能時期
2026年4月1日
間取/面積
1K(25.55m²)
向き
備考・条件
◎早得CP対象(~12/末まで)◎家賃4,500円OFF※表記条件より適用

0605号室6階

賃料
56,500円
入居可能時期
2026年2月中旬
間取/面積
1K(25.55m²)
向き
備考・条件
◎早得CP対象(~12/末まで)◎家賃4,500円OFF※表記条件より適用 ※入居時期相談応

0608号室6階

賃料
54,500円
入居可能時期
2026年4月1日
間取/面積
1K(25.55m²)
向き
西
備考・条件
◎早得CP対象(~12/末まで)◎家賃4,500円OFF※表記条件より適用

0610号室6階

賃料
53,500円
入居可能時期
2026年4月1日
間取/面積
1K(25.55m²)
向き
西
備考・条件
◎早得CP対象(~12/末まで)◎家賃4,500円OFF※表記条件より適用

0611号室6階

賃料
53,500円
入居可能時期
2026年4月1日
間取/面積
1K(25.55m²)
向き
西
備考・条件
◎早得CP対象(~12/末まで)◎家賃4,500円OFF※表記条件より適用

0612号室6階

賃料
53,500円
入居可能時期
2026年4月1日
間取/面積
1K(25.55m²)
向き
西
備考・条件
◎早得CP対象(~12/末まで)◎家賃4,500円OFF※表記条件より適用

0613号室6階

賃料
54,500円
入居可能時期
2026年1月中旬
間取/面積
1K(25.55m²)
向き
西
備考・条件
◎早得CP対象(~12/末まで)◎家賃4,500円OFF※表記条件より適用 ※入居時期相談応

0808号室8階

賃料
54,500円
入居可能時期
2026年4月1日
間取/面積
1K(25.55m²)
向き
西
備考・条件
◎早得CP対象(~12/末まで)◎家賃4,500円OFF※表記条件より適用

0809号室8階

賃料
53,500円
入居可能時期
2026年4月1日
間取/面積
1K(25.55m²)
向き
西
備考・条件
◎早得CP対象(~12/末まで)◎家賃4,500円OFF※表記条件より適用

0901号室9階

賃料
56,500円
入居可能時期
2026年3月上旬
間取/面積
1R(25.55m²)
向き
備考・条件
◎早得CP対象(~12/末まで)◎家賃4,500円OFF※表記条件より適用

0902号室9階

賃料
56,500円
入居可能時期
2026年4月1日
間取/面積
1K(25.55m²)
向き
備考・条件
◎早得CP対象(~12/末まで)◎家賃4,500円OFF※表記条件より適用

0903号室9階

賃料
56,500円
入居可能時期
2025年12月中旬
間取/面積
1K(25.55m²)
向き
備考・条件
◎早得CP対象(~12/末まで)◎家賃4,500円OFF※表記条件より適用 ※入居時期相談応

0908号室9階

賃料
59,000円
入居可能時期
2026年4月1日
間取/面積
1K(25.55m²)
向き
西
備考・条件
◎早得CP対象(~12/末まで)◎家賃4,500円OFF※表記条件より適用

お問い合わせはこちらの店舗へ

UniLife岡山駅西口店

株式会社ジェイ・エス・ビー・ネットワーク

JR・新幹線「岡山」駅西口(運動公園口)より徒歩2分

岡山県岡山市北区奉還町1丁目2-7モンテ39ビル2F
免許番号:国土交通大臣(6)第5716号
加盟団体:(公社)全日本不動産協会(公社)不動産保証協会(公社)首都圏不動産公正取引協議会
営業時間: 平日:10:00~17:00
土日祝:10:00~17:00
休業日はこちらでご確認いただけます

通話無料 0120-335-422

UniLife岡山津島店

株式会社ジェイ・エス・ビー・ネットワーク

岡電バス「岡大入口」停より徒歩1分
岡山大学正門より南へ徒歩1分

岡山県岡山市北区津島新野1丁目10-22コンブリオ1F
免許番号:国土交通大臣(6)第5716号
加盟団体:(公社)全日本不動産協会(公社)不動産保証協会(公社)首都圏不動産公正取引協議会
営業時間: 平日:10:00~17:00
土日祝:10:00~17:00
休業日はこちらでご確認いただけます

通話無料 0120-336-213

お問合せ先店舗

UniLife岡山駅西口店

通話無料 0120-335-422

営業時間:
平日:10:00~17:00
土日祝:10:00~17:00

UniLife岡山津島店

通話無料 0120-336-213

営業時間:
平日:10:00~17:00
土日祝:10:00~17:00