

タカシマダイラセントラルコート
高島平セントラルコート


UniLifeコード:1471
情報更新日:2025年12月11日 /次回更新予定日:2025年12月25日
お問合せ先店舗
賃料情報・代表間取り図
| 賃料 | 5.9万円 (2Kタイプ:6.95万円~7.4万円) |
|---|---|
| 管理費 | 8千円/月 |
| 敷金 | 1ヶ月分 |
| 礼金 | 1ヶ月分 |
「巣鴨・白山・水道橋」まで電車一本☆始発電車もあり通学ラクラク!全室南東向きで日当たり良好です♪
暗証番号式キー/洗濯機付き/コンビニ徒歩2分
360°パノラマとじるひらく
建物情報
| 所在地 |
〒175-0082 東京都板橋区高島平7丁目18-18 |
||
|---|---|---|---|
| 最寄り駅 |
都営三田線「新高島平」駅徒歩5分 都営三田線「高島平」駅徒歩7分 都営三田線「西高島平」駅徒歩15分 |
||
| 間取り/ 面積 |
1K~2K/19.88m²~36.87m²/8帖~16.5帖 |
||
| 階数・ 全部屋数 |
地上4階建て |
構造 |
鉄骨造 |
| 完成年月 |
1993年02月 |
向き |
南東 |
| 各室専用 設備 |
ユニットバス/セパレート(バス・トイレ)/ガスコンロ(1口)/IHコンロ/家具家電付(一部)/居室照明器具/バルコニー/吊棚/収納/シューズケース/インターフォン(TVモニター付)/暗証番号式キー/エアコン |
||
| 共同設備 |
BSアンテナ/CATV/インターネット対応/オートロック/防犯カメラ/エレベーター/宅配BOX/駐輪場(自転車のみ) |
||
| 家賃保証 |
契約には貸主の指定する家賃保証会社利用が必須となり、別途保証委託料が必要です。 |
||
| 契約年数 |
1年 |
更新料 |
0.5ヶ月分 |
| その他 費用 |
電気・ガス(都市):個人契約 |
||
| 取引態様 |
媒介 |
||
| 保険 |
総合補償要 |
||
入居募集中の部屋情報
| 0306号室 3階 |
59,000円 | 即入居可 | 1R (19.88m²) |
南東 |
0306号室3階
- 賃料費
- 59,000円
- 入居可能時期
- 即入居可
- 間取/面積
- 1R(19.88m²)
- 向き
- 南東
- 備考・条件
通学に便利な学校と所要時間
| 東洋大学(白山キャンパス) |
高島平→(都営三田線23分)→白山 |
|---|---|
| 共立女子大学・短期大学(神田一ツ橋キャンパス) |
高島平→(都営三田線29分)→神保町 |
| 専修大学(神田キャンパス) |
高島平→(都営三田線29分)→神保町 |
| 日本大学(経済学部) |
高島平→(都営三田線29分)→水道橋 |
| 日本大学(法学部) |
高島平→(都営三田線29分)→水道橋 |
| 大東文化大学(板橋キャンパス) |
自転車8分(約1,800m) |
| 大正大学(巣鴨校舎) |
高島平→(都営三田線17分)→西巣鴨 |
| 中央大学(後楽園キャンパス) |
高島平→(都営三田線25分)→春日 |
| 文京学院大学(本郷キャンパス) |
高島平→(都営三田線23分)→白山 |
| 法政大学(市ケ谷キャンパス) |
高島平→(都営三田線25分)→春日(4分)→(都営大江戸線2分)→飯田橋 |
| 明治大学(駿河台キャンパス) |
高島平→(都営三田線29分)→神保町 |
| 立教大学(池袋キャンパス) |
高島平→(都営三田線19分)→巣鴨(7分)→(山手線5分)→池袋 |
| 二松学舎大学(九段キャンパス) |
高島平→(都営三田線29分)→神保町→(都営新宿線1分)→九段下 |
| 星美学園短期大学 |
新高島平→(都営三田線16分)→新板橋→(徒歩8分)→板橋→(JR埼京線6分)→赤羽 |
| 淑徳大学(埼玉キャンパス) |
|
| 帝京平成大学(池袋キャンパス) |
高島平→(都営三田線19分)→巣鴨(7分)→(山手線5分)→池袋 |
| 東京家政大学(板橋キャンパス) |
高島平→(都営三田線15分)→新板橋 |
| 淑徳大学(東京キャンパス) |
|
| 日本栄養大学短期大学部(2026年4月~:女子栄養大学短期大学部より改称)(駒込キャンパス) |
新高島平→(都営三田線20分)→巣鴨→(JR山手線2分)→駒込 |
| 東京大学(本郷キャンパス) |
高島平→(都営三田線19分)→巣鴨→(JR山手線2分)→駒込→(東京メトロ南北線4分)→東大前 |
| 代々木アニメーション学院(池袋校) |
高島平→(都営三田線19分)→巣鴨→(JR山手線5分)→池袋 |
|---|---|
| 板橋中央看護専門学校 |
新高島平→(都営三田線7分)→志村坂上 |
| 東京歯科衛生専門学校 |
高島平→(都営三田線17分)→西巣鴨 |
| JTBツーリズムビジネスカレッジ |
高島平→(都営三田線19分)→巣鴨 |
| 専門学校駿台観光&ホテルブライダルビジネスカレッジ |
高島平→(都営三田線19分)→巣鴨 |
| 東京服飾専門学校 |
高島平→(都営三田線19分)→巣鴨 |
| 彰栄保育福祉専門学校 |
高島平→(都営三田線21分)→ |
| 読売理工医療福祉専門学校 |
高島平→(都営三田線25分)→春日 |
| 日本指圧専門学校 |
高島平→(都営三田線25分)→春日 |
| 尚美ミュージックカレッジ専門学校 |
高島平→(都営三田線26分)→春日 |
| 東京リゾート&スポーツ専門学校 |
新高島平→(都営三田線26分)→春日 |
| 代々木アニメーション学院(東京校) |
新高島平→(都営三田線27分)→水道橋 |
| 東京ビューティーアート専門学校 |
新高島平→(都営三田線26分)→春日→(都営大江戸線1分)→本郷三丁目 |
| 東京ウェディング&ブライダル専門学校 |
新高島平→(都営三田線26分)→春日→(都営大江戸線1分)→本郷三丁目 |
| 東京こども専門学校 |
新高島平→(都営三田線26分)→春日→(都営大江戸線1分)→本郷三丁目 |
| 東京医療秘書福祉&IT専門学校 |
新高島平→(都営三田線26分)→春日→(都営大江戸線1分)→本郷三丁目 |
| 東京テクノ・ホルティ園芸専門学校 |
高島平→(都営三田線27分)→水道橋 |
| 東京商科・法科学院専門学校 |
高島平→(都営三田線27分)→水道橋 |
| 東京理容専修学校 |
高島平→(都営三田線27分)→水道橋 |
| 日本ウェルネスAI・IT・保育専門学校 |
高島平→(都営三田線27分)→水道橋 |
「新高島平」と「高島平」2駅利用可のマンション!家具家電付きのお部屋もあり引越しもらくらく♪お部屋は1K、2Kタイプとあり、2Kタイプは兄弟姉妹の2人入居にもオススメ。全室南東向きで日当たり良好!マンション周辺はスーパーも近く、生活しやすい環境です♪
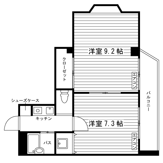
間取り図・各室専用設備紹介
間取り図
お問い合わせはこちらの店舗へ
株式会社ジェイ・エス・ビー・ネットワーク
JR「東京」駅丸の内南口より徒歩5分(京葉地下丸の内口より直結)
都営三田線「日比谷」駅B5出口より徒歩2分
東京メトロ有楽町線「有楽町」駅D1出口より徒歩2分
東京都千代田区丸の内3丁目3-1新東京ビルB1F
免許番号:国土交通大臣(6)第5716号
加盟団体:(公社)全日本不動産協会(公社)不動産保証協会(公社)首都圏不動産公正取引協議会
営業時間:
平日:10:00~17:00
土日祝:10:00~17:00
休業日はこちらでご確認いただけます
株式会社ジェイ・エス・ビー・ネットワーク
JR・私鉄・地下鉄各線「池袋」駅西口より徒歩2分
東京都豊島区西池袋1丁目18-6藤久ビル別館4F
免許番号:国土交通大臣(6)第5716号
加盟団体:(公社)全日本不動産協会(公社)不動産保証協会(公社)首都圏不動産公正取引協議会
営業時間:
平日:10:00~17:00
土日祝:10:00~17:00
休業日はこちらでご確認いただけます
360度パノラマ






























































































