

エスポアールツシマ
エスポアール津島


UniLifeコード:10520
情報更新日:2026年04月25日 /次回更新予定日:2026年05月09日
お問合せ先店舗
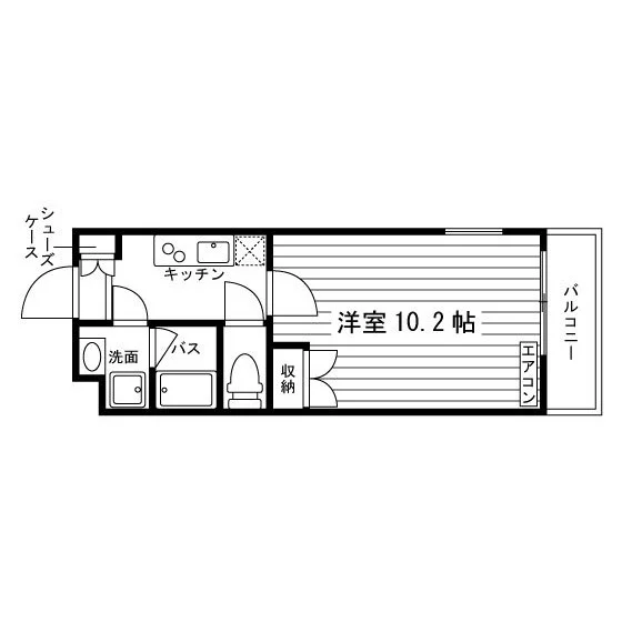
賃料情報・代表間取り図
| 賃料 | 4.95万円~5.9万円 |
|---|---|
| 共益費 | 6千円/月 |
| 敷金 | 5万円 |
| 礼金 | 15万円 |
★★★前期一般入試予定の方も来春入居予約受付中!★★★岡山大(津島)まで徒歩6分で通学便利!全室南向きで日当たり良好◎セキュリティ・設備充実のオール電化マンション!
広々居室10.2帖/コンビニ徒歩4分/月極駐車区画あり
360°パノラマとじるひらく
建物情報
| 所在地 |
〒700-0083 岡山県岡山市北区津島新野1丁目7-14 |
||
|---|---|---|---|
| 最寄り駅 |
岡電バス「新野」停徒歩3分 JR津山線「法界院」駅徒歩15分 |
||
| 間取り/ 面積 |
1K/29.58m²/10.2帖 |
||
| 階数・ 全部屋数 |
地上3階建て |
構造 |
鉄筋コンクリート造 |
| 完成年月 |
2010年02月 |
向き |
南 |
| 各室専用 設備 |
独立洗面化粧台/セパレート(バス・トイレ)/洗濯機置場(室内)/浴室乾燥機/温水洗浄便座/IH+RHコンロ(2口)/玄関センサー感知ライト/居室照明器具/フローリング/吊棚/収納/シューズケース/インターフォン(TVモニター付)/防犯ディンプルキー/エアコン/オール電化(ガス無し) |
||
| 共同設備 |
BSアンテナ/CSアンテナ/インターネット対応/オートロック/防犯カメラ/宅配BOX/浄水器設置(共用)/駐輪場(原付50cc可)/駐車場(任意) |
||
| 家賃保証 |
契約には貸主の指定する家賃保証会社利用が必須となり、別途保証委託料が必要です。 |
||
| 契約年数 |
1年 |
更新料 |
なし |
| その他 費用 |
電気・水道:個人契約 |
||
| 取引態様 |
媒介 |
||
| 保険 |
総合補償要 |
||
入居募集中の部屋情報


通学に便利な学校と所要時間
| 岡山大学(津島キャンパス) |
|
|---|---|
| 岡山理科大学 |
|
| ノートルダム清心女子大学 |
|
| 岡山商科大学 |
|
| 就実大学 |
|
| 岡山大学(大学院(津島キャンパス)) |
|
| ノートルダム清心女子大学(大学院) |
|
| 岡山商科大学(大学院) |
|
| 岡山理科大学(大学院) |
|
| 岡山大学(大学院(鹿田キャンパス)) |
|
| 岡山大学(鹿田キャンパス) |
|
| 吉備国際大学(岡山駅前キャンパス) |
|
| 岡山済生会看護専門学校 |
|
|---|---|
| 岡山理科大学専門学校 |
|
| 岡山商科大学専門学校 |
|
| 岡山進研学院 |
|
| 英数学館岡山校 |
|
| 朝日医療大学校 |
|
| 岡山医療センター附属岡山看護助産学校 |
|
| 明誠学院高等学校 |
|
静かな環境で人気の津島新野!居室は広々10.2帖☆独立洗面化粧台・浴室乾燥機・浄水器・吊棚・温水洗浄便座など設備充実!
間取り図・各室専用設備紹介
間取り図
お問い合わせはこちらの店舗へ
株式会社ジェイ・エス・ビー・ネットワーク
岡電バス「岡大入口」停より徒歩1分
岡山大学正門より南へ徒歩1分
岡山県岡山市北区津島新野1丁目10-22コンブリオ1F
免許番号:国土交通大臣(6)第5716号
加盟団体:(公社)全日本不動産協会(公社)不動産保証協会(公社)首都圏不動産公正取引協議会
営業時間:
平日:10:00~17:00
土日祝:10:00~17:00
休業日はこちらでご確認いただけます
株式会社ジェイ・エス・ビー・ネットワーク
JR・新幹線「岡山」駅西口(運動公園口)より徒歩2分
岡山県岡山市北区奉還町1丁目2-7モンテ39ビル2F
免許番号:国土交通大臣(6)第5716号
加盟団体:(公社)全日本不動産協会(公社)不動産保証協会(公社)首都圏不動産公正取引協議会
営業時間:
平日:10:00~17:00
土日祝:10:00~17:00
休業日はこちらでご確認いただけます
360度パノラマ
























































































